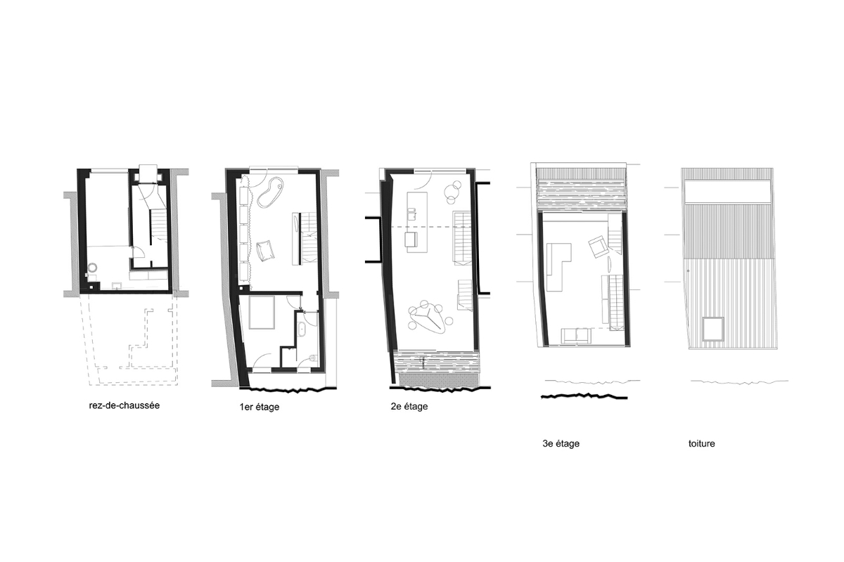
maison jfb

Fiche technique

Luxembourg- Rollingergrund
Début des travaux : mars 2010
Fin des travaux : mars 2011
Maître d’ouvrage : privé
Architecture : Besch da Costa architectes
Statique : Projetlux, M. Svoboda
Volume : 850 m³
Surface : 185 m²
Cout : n.m.
Photos: © Ricardo Vaz Palma